キッチンは収納力のあるTOTO製をセレクト。
配膳しやすいよう、ダイニングテーブルをキッチンの横に配置した
2階建てで 叶える 1階中心の 快適な暮らし

2階建てで叶える
1階中心の
快適な暮らし
1階中心の
快適な暮らし
【広島市南区 N様邸】
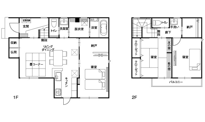
二世帯で住んでいた築47年の家の老朽化が気になり、予算やプランをリフォームと比較した結果、思い切って建て替えることにしたN様。
以前は2階に寝室があったが、将来を考え、1階だけで生活できるよう、LDKに寝室を隣接させ、浴室から洗面、トイレまでの生活動線が良い間取りを実現した。「夫婦で老後まで安心して快適に暮らせれば満足なので、基本的には設計士さんやプランナーさんにお任せしたんです。リビングに横になれる畳のスペースがほしいこと、2階に孫たちが来たときに客室にできる和室がほしいということだけ希望しました」とご主人。奥様が季節の花などを飾れるよう、ニッチや玄関の階段下スペースを確保。洋風のリビングになじむ、すっきりとした仏間も気に入っているそうだ。
マエダハウジングのほかにも数社と話をしていたが、「マエダハウジングさんと話していてロマンを感じたんですよね」とご主人。目の前で図面を引いてもらいながら話が膨らみ、ご夫婦のこれからの快適で豊かな暮らしがイメージできたという。建て替えのタイミングで断捨離も実行。すっきりとした住まいで、心地良いセカンドライフを満喫している。
以前は2階に寝室があったが、将来を考え、1階だけで生活できるよう、LDKに寝室を隣接させ、浴室から洗面、トイレまでの生活動線が良い間取りを実現した。「夫婦で老後まで安心して快適に暮らせれば満足なので、基本的には設計士さんやプランナーさんにお任せしたんです。リビングに横になれる畳のスペースがほしいこと、2階に孫たちが来たときに客室にできる和室がほしいということだけ希望しました」とご主人。奥様が季節の花などを飾れるよう、ニッチや玄関の階段下スペースを確保。洋風のリビングになじむ、すっきりとした仏間も気に入っているそうだ。
マエダハウジングのほかにも数社と話をしていたが、「マエダハウジングさんと話していてロマンを感じたんですよね」とご主人。目の前で図面を引いてもらいながら話が膨らみ、ご夫婦のこれからの快適で豊かな暮らしがイメージできたという。建て替えのタイミングで断捨離も実行。すっきりとした住まいで、心地良いセカンドライフを満喫している。

ベージュのクロスとブラウンの室内ドアで、落ち着いた雰囲気を演出。
ダイニングの横など随所にちょっとした収納を用意している
ダイニングの横など随所にちょっとした収納を用意している

キッチン側から見たリビングダイニング。
リビング側は勾配天井になっており、床色と合わせて木目の天井にすることで柔らかな印象に。
照明は多くは設けずペンダントライトや間接照明で優しく照らしている
リビング側は勾配天井になっており、床色と合わせて木目の天井にすることで柔らかな印象に。
照明は多くは設けずペンダントライトや間接照明で優しく照らしている

リビングの一角に仏間を用意


LDKから扉1枚を開ければご夫婦の寝室に。
スマートフォンやメガネなどを置けるベッドヘッド付きのすっきりとしたベッドスペースと、壁を隔てて衣類などを収納する予定の納戸が隣接。
仕切り壁は上部を開けることで圧迫感を軽減している
スマートフォンやメガネなどを置けるベッドヘッド付きのすっきりとしたベッドスペースと、壁を隔てて衣類などを収納する予定の納戸が隣接。
仕切り壁は上部を開けることで圧迫感を軽減している

お孫さんたちが遊びに来たときのゲストルームとして使用する2階の和室。
大容量の収納を設け、奥様が掛け軸や花を飾るための床の間も用意
大容量の収納を設け、奥様が掛け軸や花を飾るための床の間も用意

室内干し用のポールや可動棚の収納がある脱衣室。
扉を開けると洗面室やトイレにつながっている
扉を開けると洗面室やトイレにつながっている
洗面室は上部に小窓を設けることで採光を確保


奥様がゲストを迎える花などを飾る予定の玄関の階段下スペース
初期の提案からご夫婦が気に入っていた、特徴的な大屋根の外観


広島市南区 N様邸
Data
広島市南区 N様邸
Data
敷地面積/143.13㎡(43.3坪)
延床面積/90.26㎡(27.3坪)
施工期間/4カ月
家族構成/夫婦+子ども1人
延床面積/90.26㎡(27.3坪)
施工期間/4カ月
家族構成/夫婦+子ども1人

敷地面積/143.13㎡(43.3坪)
延床面積/90.26㎡(27.3坪)
施工期間/4カ月
家族構成/夫婦+子ども1人
延床面積/90.26㎡(27.3坪)
施工期間/4カ月
家族構成/夫婦+子ども1人